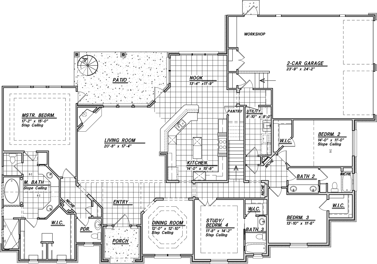
PLAN 3900. 4/3 ½ /2 Two Story. 3904 sq. ft.
The versatility of this rock house is illustrated by the study/4th bedroom and the bonus room which could serve as either a media or gameroom. A spiral staircase leads from the lower patio to an upper deck. The master suite offers privacy from the other bedrooms located on the opposite side of the house, and has a convenient divided walk-in closet. The master, dining and study offer coffered ceilings. |