Skip to main content
Main navigation
Home
About Us
Design Approach
FAQs
Testimonials
Copyright Information
Contact Us
Builder Plans
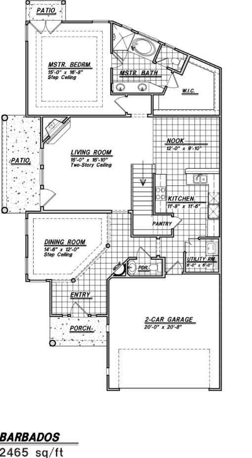
Garden Home Product-Caribbean Series - Barbados
Small Product - American Series - Yellowstone
Duplex Product-Great Lake Series - Superior
Pagination
1
2
3
4
5
6
7
8
9
…
››
Next page
Last »
Last page